© 2018 OFFICE SERRAMENTI

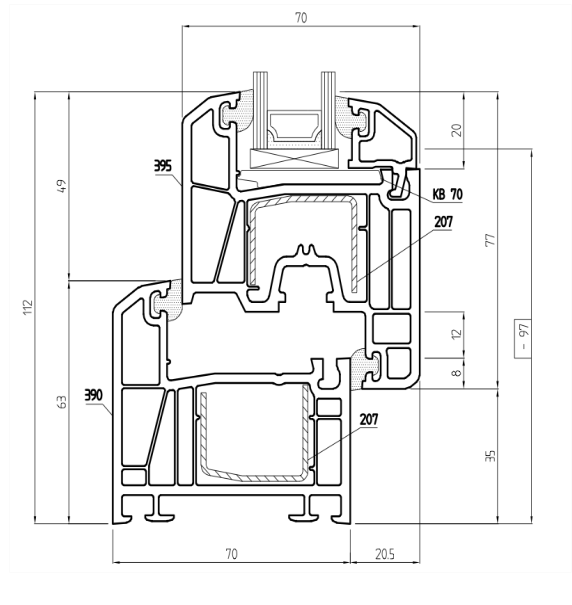
I profili hanno una profondità di base di 70 mm, con 5 camere d’isolamento; Possono essere utilizzati nelle nuove costruzioni ma anche in quelle di ristrutturazione. Il telaio e l’anta con rinforzo perimetrale in acciaio zincato assicurano la stabilità dell’infisso ed anche una funzionalità ottima a lungo tempo. La ferramenta utilizzata ha il marchio MACO o WINKHAUS. Grazie alla loro capacità di auto spegnersi nella prima fase dell’incendio, I serramenti KOMMERLING sono in conformità con le norme europee riguardo la protezione antincendio (DIN 4102 B2).

EPDM che offre un’alta ermeticità della finestra al vento,
pioggia e polvere con 2 guarnizioni di stagnatura.
Armatura perimetrica in acciaio zincato: 1,5 mm – 3 mm o equivalente.

Adottando il sistema GreenLine, il Gruppo PROFINE è
diventato l'unico grande produttore di profili che usano
come standard uno stabilizzatore chimico che elimina il
piombo durante il processo di produzione.
Oltre al lato ecologico, i prodotti PROFINE sono più
resistenti ai fattori esterni, mantenendo il loro aspetto
lucido a lungo tempo e hanno proprietà d’isolamento
termico superiore.
I serramenti hanno i profili con il marchio KOMMERLING
e quest’ultimi corrispondono alle norme europee di
protezione antincendio DIN 4102 B2 grazie alla loro
capacità di spegnersi nella prima fase d’incendio.
I profili hanno una profondità di base di 70 mm, con 5 camere d’isolamento; possono essere utilizzati nelle nuove costruzioni ma anche in quelle di ristrutturazione.
Il telaio e l’anta hanno un rinforzo perimetrale in acciaio zincato assicurando la stabilità dell’infisso ed anche un’ottima funzionalità a lungo tempo. Le doppie guarnizioni EPDM sono di color grigio o nero (per i serramenti a colore).
La ferramenta utilizzata ha il marchio MACO o WINKHAUS.

EPDM che offre un’alta ermeticità della finestra al vento,
pioggia e polvere con 2 guarnizioni di stagnatura.
Armatura perimetrica in acciaio zincato: 1,5 mm – 3 mm o equivalente.

Profilo classe A (i migliori per quanto riguarda lo spessore
delle pareti esterni e le dimensioni delle camere) con una
linea estetica ed armoniosa grazie al design delle ante e al fermavetro arrotondato.
Avendo una mazzetta con più di 50 colori, includendo
tonalità di colori quali imitano il legno, Si può scegliere
tra il bianco semplice (in massa), bianco all’interno/colore
all’esterno, colore per entrambi i lati o anche il pellicolato 3D.
La superficie dei profili colorati corrisponde agli stessi
standard di qualità imposti dai profili estrusi.
I procedimenti di fabbricazione danno la garanzia per una
struttura ed un colore uniforme con un’alta resistenza alle variazioni del clima.
I profili VEKA hanno l’etichetta di qualità RAL.
I profili hanno una profondità di 82 mm, avendo 7 camere d’isolamento nel telaio e 6 nell’anta; possono essere utilizzati sia per quanto riguarda le nuove costruzioni che in quelle di ristrutturazione. Il telaio e l’anta hanno un rinforzo perimetrale in acciaio zincato assicurando la stabilità dell’infisso ed anche un’ottima funzionalità a lungo tempo.
I profili VEKA 82 hanno un notevole coefficiente d’isolamento termico: Uw fino allo 0,7 W/mpk. L'efficiente sistema di ermeticità con 3 guarnizioni protegge dal rumore, dall’umidità e anche dallo scambio termico con l’esterno.
La ferramenta utilizzata ha il marchio MACO o WINKHAUS.

EPDM che offre un’alta ermeticità della finestra al vento,
pioggia e polvere con 2 guarnizioni di stagnatura.
Armatura perimetrica in acciaio zincato: 1,5 mm – 3 mm o equivalente.

La nuova gamma di serramenti in PVC VEKA con 7 camere
d’isolamento è stata creata per rispondere alle alte
esigenze d’isolamento termico.
Avendo lo spessore delle pareti esterne in conformità con
gli standard più rigorosi e di qualità, VEKA Softline 82 riesce a mettere insieme il risparmio energetico, la durabilità, la stabilità e la sicurezza.
Profili il cui rapporto qualità - affidabilità / prezzo
garantisce un investimento perfetto.
La qualità dei serramenti viene mantenuta anche dopo
decenni di utilizzo, con un'aspettativa di vita di oltre 50 anni.
Il nuovo sistema di stagnatura con guarnizione centrale è un nuovo prodotto per un sistema di finestre che, oltre ai valori rimarcabili di coibentazione e proprietà statiche migliorate, presenta anche proprietà tecniche che prima sono state raggiunte solo con sistemi di profili con profondità di montaggio più alte.

EPDM che offre un’alta ermeticità della finestra al vento,
pioggia e polvere con 2 guarnizioni di stagnatura.
Armatura perimetrica in acciaio zincato: 1,5 mm – 3 mm o equivalente.

La nuova gamma di serramenti in PVC KOMMERLING 76 con 6 camere
d’isolamento è stata creata per rispondere alle alte
esigenze d’isolamento termico.
Avendo lo spessore delle pareti esterne in conformità con
gli standard più rigorosi e di qualità Profine riesce a mettere insieme il risparmio energetico, la durabilità, la stabilità e la sicurezza. Winkhaus ActivePilot che assicura alle finestre un alto livello di ermeticità e sicurezza. Armatura perimetrica in acciaio zincato: 1,5 mm – 3 mm o equivalente. Standard: anti-manovra sbagliata, aerazione controllata.
La qualità dei serramenti viene mantenuta anche dopo
decenni di utilizzo, con un'aspettativa di vita di oltre 50 anni.
© 2018 OFFICE SERRAMENTI